土地情報(高低差のある土地)
土地価格を抑えて、設計力で価値を高める
― 高低差のある土地の家づくり―
崖地や高低差のある土地は、立地条件が良くても土地の価格を抑えられるケースが多くあります。
その一方で、一般的な住宅会社では敬遠されがちな難しい敷地条件でもあります。
川島建築事務所では、こうした土地だからこそ生まれる
「開放的な眺望」
「外からの視線を遮ったプライベート空間」
「立体的で個性のある間取り」
高低差を活かした住まいづくりをご提案しております。
実際の土地条件を想定した参考プランをぜひご覧ください。
※下記の参考プランについては名古屋市・尾張旭市内にて実際に販売中の土地を元に作成しております。
土地の詳細についてもご案内させていただきますので、お気軽に下記よりお問い合わせください。
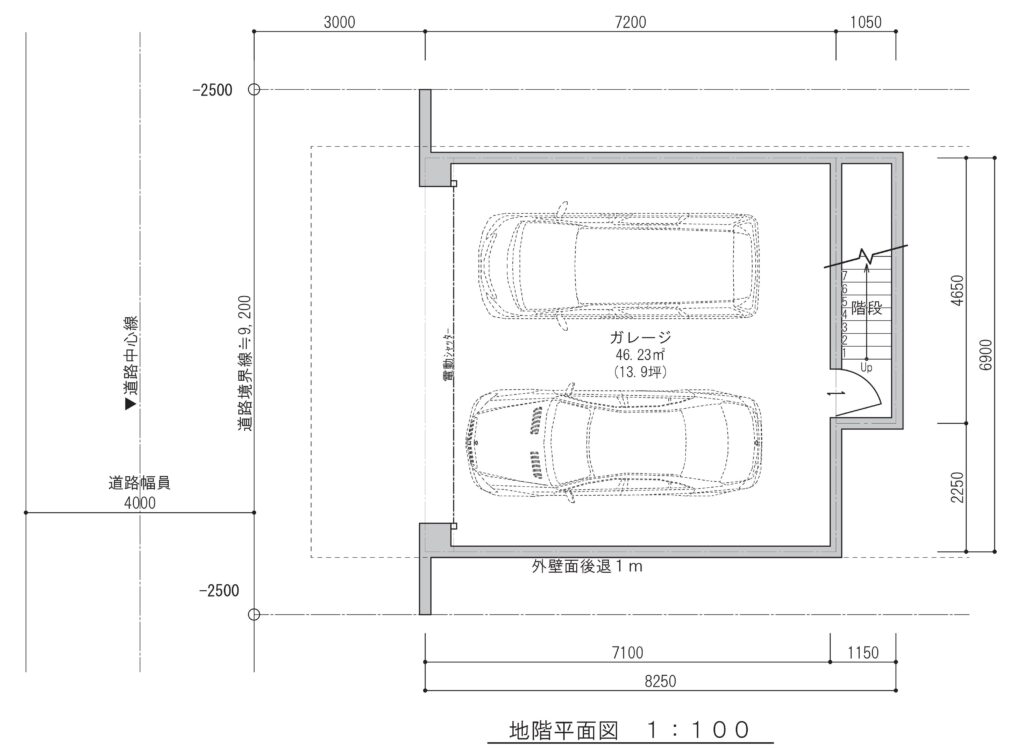
♯01 名東区山の手
[土地情報]
物件所在:名古屋市名東区山の手 某所
用途地域:第1種低層住居専用地域
建ぺい率:40%
容積率 :80%
その他 :10m高度地区・緑化地域・外壁面後退1m・宅地造成等工事規制区域
敷地面積:254.00㎡(76.83坪)(公簿)
コメント:
土地の南側と北側の2面が道路に面しており、北側と南側で約2.5mの高低差があり北側が低くなる北垂れの土地です。間口は9mほどありゆったりしたプランが計画可能です。



[建物情報]
構造規模:地下1階鉄筋コンクリート造+地上2階木造 混構造
建築面積:94.86㎡
延床面積:227.16㎡(68.71坪)
建物特徴:
南北に高低差のある地形であるため、その段差を積極的に活かし、建物下部に車庫を組み込む計画としました。これにより、過度な擁壁工事を避け、造成費を抑えつつ、敷地本来の地形を活かした合理的な構成としています。
北側道路は幅員4mとややタイトですが、敷地側を約3mセットバックすることで、車両の進入・転回に配慮し、大型車でも無理なく駐車できる動線を確保しました。
また、敷地が南北に長い特性を踏まえ、南側には十分な広さのテラスと駐車スペースを配置できる余地を残しています。外壁面後退の制限がある中でも、内部空間は4LDKの構成とし、居住性とプランのゆとりを両立させた計画としています。
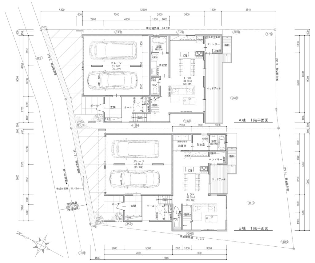
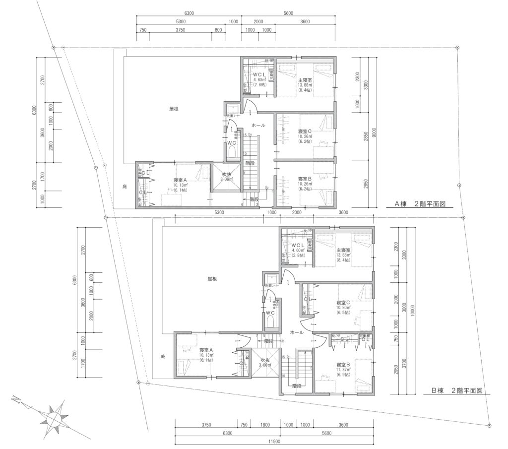
♯02 尾張旭市霞ヶ丘町南
[土地情報]
物件所在:尾張旭市霞ヶ丘町南 某所
用途地域:第1種中高層住居専用地域
建ぺい率:60%
容積率 :200%
その他 :宅地造成等工事規制区域
敷地面積:224.58㎡(67.93坪)/A棟 ・ 229.98㎡(69.56坪)/B棟
コメント:
車での進入は北側道路のみとなりますが、道路の突き当たり付近に位置する落ち着いた立地です。南側には約5mの高低差があり、開放感のある眺望と高いプライベート性を兼ね備えた土地です。


[建物情報]
構造規模:地上2階木造
建築面積:115.83㎡/A棟 ・ 119.00㎡/B棟
延床面積:178.11㎡(53.87坪)/A棟 ・ 184.45㎡(55.79坪)/B棟
建物特徴:
シャッター位置を敷地内にセットバックさせることで、車両の切り返しや入出庫動線に余裕を持たせ、日常利用のしやすさに配慮しています。
また、南側に向かって下がる敷地形状を活かし、地盤の傾斜に沿って建物を配置することで、半地下レベルにLDK空間を計画しました。これにより、道路からの視線を自然に外し、落ち着きのあるプライベートなリビング空間を確保しつつ、南側には開放的な眺望を取り込む構成としています。
接道付近の平場と傾斜部分を無理に整地せず、地形なりに活かす計画とすることで、造成コストを抑えながら、敷地特性を最大限に引き出した魅力的な住まいを目指しました。
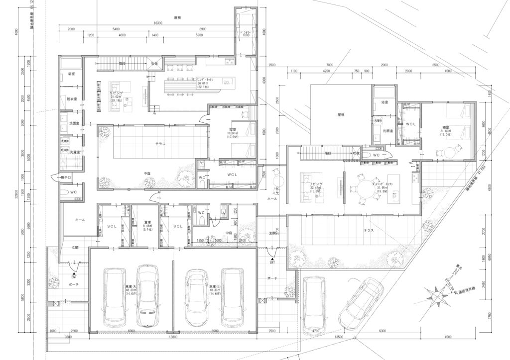
♯03 守山区大森八龍
[土地情報]
物件所在:守山区大森八龍 某所
用途地域:第1種低層住居専用地域
建ぺい率:40%
容積率 :60%
その他 :10m高度地区・緑化地域・宅地造成等工事規制区域・第2種風致地区、外壁面後退1m
敷地面積:1997.19㎡(604.14坪)
コメント:
森の中の広大な土地です。自然に囲まれていて北側に下がる土地ですが、北側に広く開放された山の形状がつらなっているため大変眺望が良い土地です。

建物配置図 1:100

1階平面図 1:100

地階平面図 1:100
[建物情報]
構造規模:地下1階鉄筋コンクリート造+地上1階木造 混構造
建築面積:565.94㎡
延床面積:542.16㎡(164.00坪)(A世帯:89.48坪・B世帯:74.52坪)
建物特徴:
本敷地は道路側に比較的広い平場が確保されているため、全体を造成するのではなく、必要に応じて傾斜部分を部分的に利用する計画としています。敷地の広さを最大限に活かし、将来的な使い方にも柔軟に対応できる二世帯住宅を想定したプランとしました。
建物は全体として平屋をベースとした伸びやかな構成とし、北側には眺望を取り込みながら、南側にはテラスや中庭を設けることで、外部からの視線を適度に遮りつつ、明るく開放的なリビング空間を実現しています。
また、傾斜地にかかる地下レベルには寝室やゲストルームを配置し、周囲の森林環境と連続する、静かで落ち着きのあるプライベートな居住空間としました。敷地の地形と自然環境を活かしながら、ゆとりと居心地の良さを両立させた住まいを目指しています。
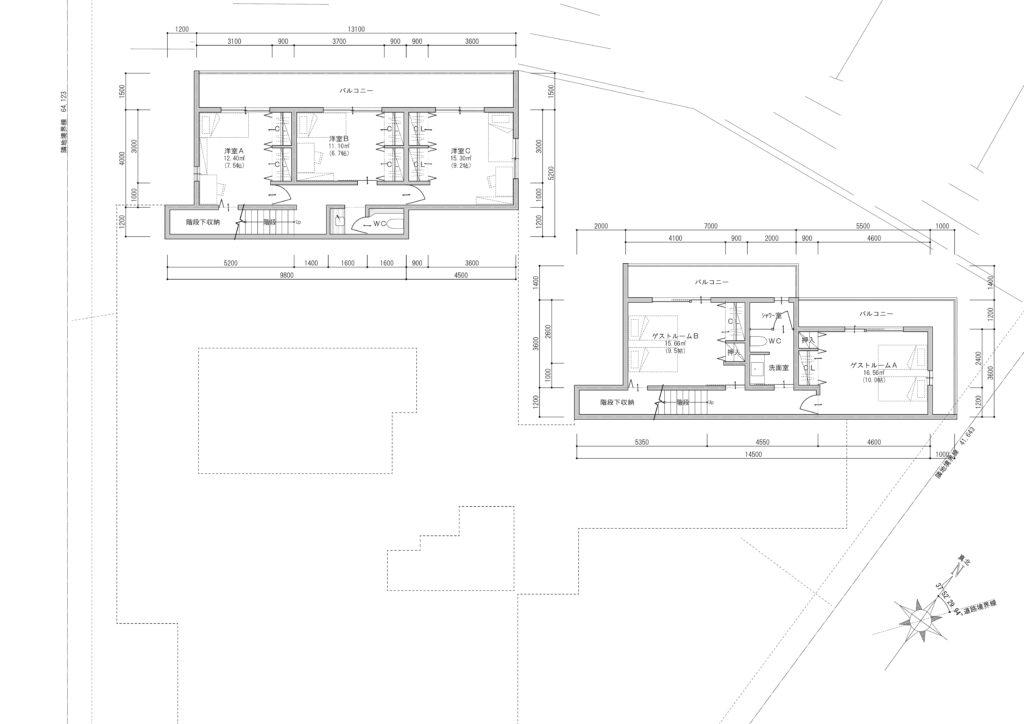
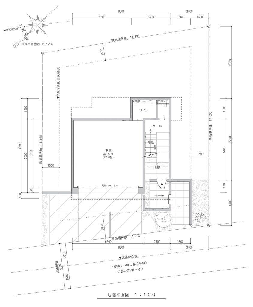
♯04 天白区八幡山
[土地情報]
物件所在:天白区八幡山 某所
用途地域:第1種低層住居専用地域
建ぺい率:30%
容積率 :100%
その他 :10m高度地区・緑化地域・宅地造成等工事規制区域・第2種風致地区、外壁面後退1.5m
敷地面積:251.23㎡(75.99坪)
コメント:
前面道路に傾斜があり、敷地の道路側と奥側とでも3m程度の高低差のある土地になります。



[建物情報]
構造規模:地下1階鉄筋コンクリート造+地上2階木造 混構造
建築面積:251.23㎡
延床面積:201.78㎡(61.03坪)
建物特徴:
車庫は道路境界線からセットバックした位置に配置し、前面道路からの入出庫がスムーズに行えるよう配慮しています。
一般的には外部階段によって玄関ポーチまで上り下りする計画が多く見られますが、本プランでは屋内に階段を設け、玄関に入ってから上下階を移動できる構成としました。これにより、天候の影響を受けにくく、日常動線としても使いやすい計画としています。
道路側は視線を抑えた閉鎖的な構えとしつつ、南側には開放的なテラスを設け、内部は4LDKの構成としました。周囲環境との関係性を整理しながら、プライバシーと開放感を両立させた住空間を目指しています。
※上記の参考プランについては名古屋市・尾張旭市内にて実際に販売中の土地を元に作成しております。
土地の詳細についてもご案内させていただきますので、お気軽に下記よりお問い合わせください。
高低差を活かした土地の実績をご覧になりたい方は下記リンクよりご覧いただけます!
設計実績
傾斜地に建てた実例写真はこちら→傾斜地の住宅
鉄筋コンクリートと木造の住宅→混構造の住宅
お問い合わせ
ご相談はこちらから→お問い合わせ
資料請求をご希望の方はこちら→資料請求
